密闭采样系列
罐下密闭采样器
|产品介绍
HCYSA型油罐罐下采样器是我公司依据石化行业ISO3170(GB/T 4756-1998)《石油液体产品手工取样法》、参考UOP技术、结合生产实际、用户意见、国外同类产品先进经验、历经几年开发设计的新型采样设备(HCYSA-I型拱顶罐采样器;HCYSA-II型内浮顶罐采样器)。
HCYSA型油罐罐下采样器有其如下优越性:
1、采用柔性连接技术,从而减少了罐内液体扰动对浮臂的冲击力量,延长了罐内装置的使用寿命;
2、采样系统罐外部分采用流行的室外防雨、防尘、防盗箱式一体化结构,所有阀门、接管、循环泵组装在箱体内整体供货,组装完毕后整体进行1.0MPa水压试验;
3、与物料接触部分材质为304,既保证了样品的纯净,又增强了管线的防腐蚀性能,确保使用寿命10年以上;
4、循环泵是我公司自主研发产品,具有防冻裂功能,焊接制造,材质为304,摇臂能360°轻松旋转,羟乙基纤维素密封件结构采用无泄漏齿形纤维填料;
5、采样、循环系统中采用两位一通专用采样阀门,材质为304,密封为耐寒特富龙。
用途
1、HCYSA-I型系列产品,用于100~10000m3拱顶贮罐罐下采样。
2、HCYSA-II型系列产品,用于100~50000m3内、外浮顶贮罐罐下采样。
3、HCYSA-III型系列产品,用于100~100000m3浮顶储罐罐下采样。
4、HCYSA-Ⅳ型系列产品,用于100~100000m3拱顶储罐罐下采样。
HCYSA型油罐罐下采样器有其如下优越性:
1、采用柔性连接技术,从而减少了罐内液体扰动对浮臂的冲击力量,延长了罐内装置的使用寿命;
2、采样系统罐外部分采用流行的室外防雨、防尘、防盗箱式一体化结构,所有阀门、接管、循环泵组装在箱体内整体供货,组装完毕后整体进行1.0MPa水压试验;
3、与物料接触部分材质为304,既保证了样品的纯净,又增强了管线的防腐蚀性能,确保使用寿命10年以上;
4、循环泵是我公司自主研发产品,具有防冻裂功能,焊接制造,材质为304,摇臂能360°轻松旋转,羟乙基纤维素密封件结构采用无泄漏齿形纤维填料;
5、采样、循环系统中采用两位一通专用采样阀门,材质为304,密封为耐寒特富龙。
用途
1、HCYSA-I型系列产品,用于100~10000m3拱顶贮罐罐下采样。
2、HCYSA-II型系列产品,用于100~50000m3内、外浮顶贮罐罐下采样。
3、HCYSA-III型系列产品,用于100~100000m3浮顶储罐罐下采样。
4、HCYSA-Ⅳ型系列产品,用于100~100000m3拱顶储罐罐下采样。
|产品结构
结构形式1、HCYSA-I型系列产品结构形式为浮标带动的采样管装置(见图一)
2、HCYSA-II型系列产品是利用内浮顶罐内浮盘带动的采样管装置(见图二)
3、HCYSA-III型系列产品结构形式为浮盘铰链式采样装置(见图三)
4、HCYSA-IV型系列产品结构形式为铰链式采样装置(见图四)
5、以上系列产品结构的共同特点:
(1)采样点准确
(2)采样管与油罐外部管线间都用304材质不锈钢金属软管连接,保证了采样组合件活动灵活,因此远比其它非金属材料软管寿命长。
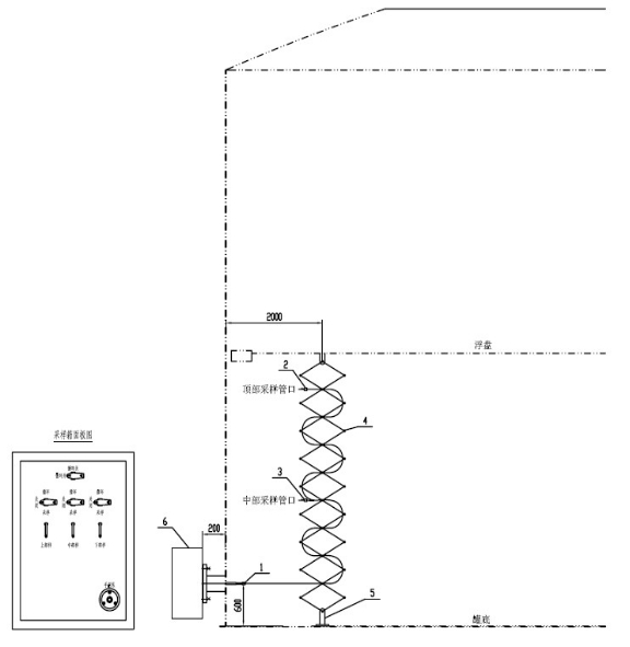
HCYSA-I型罐下采样器结构示意图

1、管束托架 2、管束支座 3、金属软管 4、采样箱 5、采样箱接管 6、下部样采样管 7、支撑管 8、中部样采样管 9、上部样采样管 10、浮球
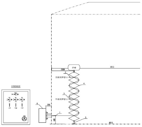
HCYSA -II型罐下采样器结构示意图

1、管束托架 2、管束支座 3、金属软管 4、采样箱 5、采样箱接管 6、下部样采样管 7、支撑管 8、中部样采样管 9、上部样采样管 10、吊钩
HCYSA -Ⅲ型罐下采样器结构示意图
浮顶储罐浮盘铰链式采样装置

HCYSA -Ⅳ型罐下采样器结构示意图

|产品技术参数
1、采样器全部组装后,对易腐蚀件应涂防腐漆两遍。2、本采样器采样点的设置系根据依据石化行业ISO3170(GB/T 4756-1998)《石油液体产品手工取样法》、SH-T3414-1999《轻质油罐下采样器选用、检验验收》设计,上部,中部和下部采样口总保持在液面的六分之五,二分之一和六分之一处。
3、吊钩应在现场按罐内介质而确定尺寸,其圆弧圆心误差不应大于±200毫米。
|安装维护
HCYSA型油罐罐下采样器安装方便。分罐内、罐外两部分安装。安装时,先安装罐外部分,再安装罐内部分。所有焊接按JB/T 4709-2000《钢制压力容器焊接规程》的规定执行。1、罐外安装:
1.1 在离罐底1米高的油罐壁上开一个直径为90毫米的孔;
1.2 把配备的带法兰接管与罐壁焊接;
1.3 把采样器箱体法兰与罐壁法兰连接。
2、罐内安装:
2.1 在离罐壁开孔1米处(向罐中心),把支架焊接于罐底;
2.2 在离罐壁开孔8米处(向罐中心),把管束托架焊接于罐底;
2.3 按标记连接采样管线,拧紧采样管线的活接,并固定于支架、平放在托架上;
2.4 用金属软管把采样箱伸入罐内的采样管和采样管线连接,连接时依次将伸入罐内较长(中、短)的采样管和管线中较长(中、短)的采样管线相连。
2.5 浮顶罐:用吊钩组件把采样管束固定在离罐壁4米处的罐内浮盘上,固定点和管束支架、托架在垂直于罐底的同一平面上。
拱顶罐:把浮球固定在采样管线上,较小的浮球固定在采样管线中部,较大的浮球连接在采样管线梢部。
使用
HCYSA型油罐罐下采样器使用简单、快捷,如附图,操作步骤如下:
1. 打开采样器箱门,取出循环泵手柄,安装在手摇泵的轴上,并打开面板下部的总循环阀门;
2. 把上部样取样阀门拧到“循环”位置上,然后慢慢的摇动循环泵手柄数圈(上部样约5圈,中部样约3.5圈,下部样约2圈);
3. 把采样瓶放于上部样阀门的出口下,再把阀门从循环位置拧到采样位置上,便可采到所需样品,样品达到所需量后,关闭取样阀门;
4. 中、下部样的采样次序均如此,上中下部样的顺序可以任意选择;
5. 采样完成后,把所有采样阀均旋到“关闭”位置,拿下循环泵手柄,竖立在箱内,关闭箱门。采样过程完成。








产品中心 
