过滤器系列
双联过滤器
|产品介绍
双联切换过滤器是由两台过滤器并联而成,具有结构新颖合理、密封性好、流通能力强、操作简便等优点,应用范围广泛、适应性强的多用途过滤设备。双联切换过滤器采用两个三通球阀,将两个单筒过滤器组装在一个机座上,清洗过滤器时不必停车,保证其连续工作。
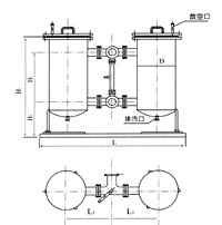
|产品结构
|产品技术参数
双联切换过滤器参数材料表:| 壳体材质 | 碳钢 不锈钢 |
| 滤框滤网材质 | 不锈钢 |
| 三通球阀 | 碳钢 不锈钢 |
| 密封件材质 | 耐油石棉橡胶、金属缠绕垫、聚四氟乙烯 |
| 工作温度(℃) | -80~450 |
| 连接方式 | 法兰连接、对焊连接、螺纹连接 |
| 公称压力(MPa) | 0.6~5.0 (150Lb~600Lb) |
| 过滤精度(目/in) | 5~800 |
双联切换过滤器表格计算单位:(mm)
| DN | D | L | L1 | H1 | H2 | H3 |
| 50 | 273 | 1250 | 380 | 1200 | 460 | 550 |
| 65 | 325 | 1280 | 400 | 1200 | 475 | 550 |
| 80 | 377 | 1400 | 420 | 1440 | 515 | 660 |
| 100 | 425 | 1570 | 480 | 1480 | 540 | 690 |
| 150 | 520 | 1880 | 580 | 1780 | 610 | 900 |
| 200 | 566 | 2100 | 650 | 1880 | 680 | 900 |
|安装维护
|订货须知
1、我厂承接各种非标尺寸双联切换过滤器;2、订货时请注明口径、材质、压力、过滤精度及数量等。








产品中心 
