过滤器系列
夹套保温过滤器
|产品介绍
夹套加热过滤器主要应用在一些工况较为寒冷的地方或者介质温度较低的情况,其夹套的进口可通入热循环水或蒸汽,进而保证介质可以在指定的温度内工作。
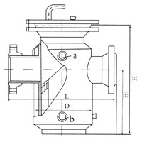
|产品结构
|产品技术参数
夹套加热过滤器参数材料表:| 壳体材质 | 碳钢 不锈钢 衬里 |
| 滤框滤网材质 | 不锈钢 |
| 密封件材质 | 耐油石棉橡胶、金属缠绕垫、聚四氟乙烯 |
| 工作温度(℃) | -80~450 |
| 连接方式 | 法兰连接、对焊连接、螺纹连接 |
| 公称压力(Mpa) | 0.6~16.0 (150Lb~900Lb) |
| 过滤精度(目/in) | 5~800 |
夹套加热过滤器表格计算单位:(mm)
| DN | L | H | H1 | D | ab |
| 25 | 285 | 300 | 150 | 133 | 20 |
| 32 | 330 | 320 | 170 | 159 | 20 |
| 40 | 390 | 350 | 190 | 180 | 20 |
| 50 | 440 | 380 | 210 | 219 | 20 |
| 65 | 450 | 420 | 230 | 219 | 20 |
| 80 | 480 | 450 | 280 | 250 | 20 |
| 100 | 540 | 650 | 340 | 325 | 20 |
|安装维护
|订货须知
1、我厂承接各种非标尺寸夹套加热过滤器;2、订货时请注明口径、材质、压力、过滤精度及数量等。








产品中心 
