水幕喷头系列
PZM-PZD喷嘴系列
|产品介绍
喷淋喷嘴是石油、化工罐区防护冷却、消防灭火所必备的器材。我厂根据国家GB5135.3-2003《水雾喷头》的标准,参考国外先进技术,研制了“进水口与出水口成一定角度的离心雾化喷头”PZM型和PZM-A型;“由于撞击作用而产生雾化的水幕喷头”PZD-C型。产品经“国家固定灭火系统和耐火构件质量监督检验中心”试验,其技术性能和技术指标均达到国内外有关标准的要求。
|产品结构
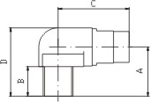
PZM-1/2~11/2内、外螺纹满锥型

| 型号 | A | B |
C 面距 |
Q(L/min) 0.2Mpa-0.35Mpa |
a 喷散角 |
| PZM-1/2RC/R | 46/44 | 19/17 | 26/26 | 10~30 | 90~120° |
| PZM-3/4RC/R | 54/52 | 22/20 | 32/32 | 35~60 | 90~120° |
| PZM-1RC/R | 67/65 | 24/21 | 42/38 | 65~100 | 90~120° |
| PZM-11/2RC/R | 82/80 | 27/25 | 56/52 | 120~150 | 90~120° |
| 喷散角度也可做成45°、60°、135°、150° | |||||
| 雾化雾滴平均直径不大于1mm | |||||
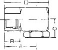
PZM-A-1/2~1"" (R) 外螺纹满锥型


| 型号 | A | B | C | D | Q(L/min) | |
| 0.2MPa | 0.35MPa | |||||
| PZM-A1/2R | 35 | 21 | 50 | 48 | 20~30 | 30~50 |
| PZM-A3/4R | 35 | 21 | 50 | 48 | 35~60 | 60~80 |
| PZM-A1R | 43 | 26 | 58 | 65 | 65~100 | 100~120 |
| 喷散角度也可做成45°、60°、135°、150° | ||||||
| 雾化雾滴平均直径不大于1mm | ||||||
PZD-C 3/8~3/4"" (R)外螺纹撒水幕型


| 型号 | 最小间隙 | 操作压力 工作流量 | 喷散角 | |||
| 0.15MPa | 0.2MPa | 0.3MPa | 0.35MPa | |||
| PZD-C3/8R | Φ4.0 | 11.0 | 12.8 | 15.8 | 20 | 120° |
| PZD-C1/2R | Φ5.6 | 21.9 | 25.5 | 31.4 | 37 | 120° |
| PZD-C3/4R | Φ7.7 | 47.6 | 55.0 | 67.4 | 80 | 120° |
PZD-1/4~3/4""R外螺纹大水幕型

| 型号 |
A (mm) |
B (mm) |
C (mm) |
额定压力下流量Q(L/min) | 喷散角 | |
| 0.15MPa | 0.20MPa | |||||
| PZD-1/4R | 30 | 12 | 15 | 2.2~4.4 | 2.7~5.5 | 90~120° |
| PZD-3/8R | 36 | 13 | 18 | 4.4~6.6 | 5.5~7.5 | 100~120° |
| PZD-1/2R | 42 | 16 | 22 | 6.6~28 | 7.5~32 | 120~130° |
| PZD-3/4R | 32 | 18 | 30 | 28~55 | 32~65 | 120~130 |
PZZ-1/2~1 1/4"内、外螺纹空锥型喷嘴



| 型号 | A | B | C | D |
Q(L/min) 0.2Mpa-0.3Mpa |
喷散角 |
| PZZ-1/2R/RC | 37 | 17 | 23 | 52 | 15~30 | 90~120 |
| PZZ-3/4R/RC | 43 | 19 | 28 | 62 | 30~45 | 90~120 |
| PZZ-1R/RC | 50 | 21 | 30 | 72 | 45~60 | 90~120 |
| PZZ-11/4R/RC | 52 | 23 | 38 | 78 | 60~100 | 90~120 |
PZQ型罐顶喷嘴
罐顶喷嘴安装于储罐顶部,起防护冷却和消防灭火作用。


| 规格 | ZG |
H mm |
H1 mm |
压力 P |
流量Q L/min |
角度 |
| DN15 | 1/2"R | 53 | 36 | 0.3 | 30 | 360° |
| DN20 | 3/4"R | 60 | 42 | 0.3 | 50 | 360 |









产品中心 
