截油排水系列
HB-II型自动截油排水器
|产品介绍
北方寒冷地区季节温差大,冻土层深。为防止沉砂井和排水管冬季结冰,保证罐区自动截油排水器的使用效果,安装时将自动截油排水器的排水管平行埋在冻土层线以下,从而达到当地表结冰时而沉砂井和排水管不结冰的目的,确保自动截油排水器不受季节温差的影响,常年有水自动排出,有油自动截留,无水自动关闭。
|产品结构


1、本产品采用无背压的特殊设计结构,杠杆带动阀针移动,使阀芯外压力一致,杠杆继续移动,针阀和阀门很灵活的一起开始排水,从而解决了减压与排水阀不同步的现象,克服了关闭不严的缺点,确保灌区安全;
2、不需任何能源实现自动控制,安全、环保、经济;
3、体积小、结构合理、无易损件、使用寿命长、不需补充水,使用维修方便;
4、有水时自动开启,天旱无水时自动关闭,有油水混合物时实行油水自动分离,本设备24小时全天候工作,减轻了操作工下雨时开阀、天晴关阀的工作压力,杜绝了跑油事故的发生。
|产品技术参数
1、公称通径:DN200、DN250、DN300、DN350、DN400、DN5002、公称压力:≤0.25MPa
3、法兰标准:HG20592-2009
4、适用介质密度:≤970kg/m3
| 型号 | 通径(mm) | 压力(MPa) | D | L | H |
| HB-200-11 | DN200 | PN0.25 | 219 | 880 | 520 |
| HB-250-11 | DN250 | PN0.25 | 273 | 930 | 520 |
| HB-300-11 | DN300 | PN0.25 | 325 | 980 | 520 |
| HB-350-11 | DN350 | PN0.25 | 377 | 1030 | 520 |
| HB-400-11 | DN400 | PN0.25 | 426 | 1080 | 620 |
| HB-500-11 | DN500 | PN0.25 | 530 | 1281 | 720 |
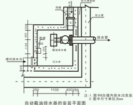
|安装维护
本产品直接安装在油品罐区沉砂井内,直接与排水管水平连接,详细尺寸参见中石化工业通用图“总图运输通用图集”SH104—2006《油品灌区水封阀安装图》。1、打开包装,按装箱单清点设备;
2、先将出水筒法兰与排水管水平法兰连接:
3、将浮筒连接在水筒上;
4、安装阀芯和杠杆连接浮筒与杠杆之间的撑杆;
5、安装配重后即行投入使用;
6、请按以下视图安装:


注意事项
1、油品罐区内通往沉砂井的排水沟必须设有隔栅,不得让杂物流入沉砂井内,造成排水阀失灵。
2、安装和清除沉砂井内的杂物时,工作人员上下要用爬梯,不得用浮筒作爬梯,否则会造成截油排水器阀门的泄露和杠杆的折弯或折断。
3、要定时清除排水沟内的杂物和沉积物,否侧会影响排水器阀的开启和关闭。
4、要及时回收沉砂井内的积油。
5、本设备出厂前已调试好,不要自行调试。按照步骤组装即可使用。
6、截油排水器的出水筒与排水管的连接必须保持水平安装。
常见故障处理方法
| 故障现象 | 故障原因 | 处理方法 |
| 排水阀芯关闭不严,少量带油 | 阀芯有杂物卡住 | 及时清除杂物 |
| 密封圈变形 | 更换密封圈 | |
| 排水阀芯打不开,不能排水 | 浮筒与杠杆连接脱落 | 恢复杠杆与浮筒连接栓 |
| 用浮筒作爬梯使杠杆折弯、折断 | 恢复杠杆 | |
| 配重位置移动 | 重新调整配重 | |
| 浮筒泄露 | 更换浮筒 | |
| 沉砂井中沉积物过多 | 清除杂物 |








产品中心 
